0
Skip to Content
Home
Projects
New homes
Alterations and Additions
Apartments/Duplex
Our Services
What we do
About
Contact
Open Menu
Close Menu
Home
Projects
New homes
Alterations and Additions
Apartments/Duplex
Our Services
What we do
About
Contact
Open Menu
Close Menu
Home
Folder:
Projects
Back
New homes
Alterations and Additions
Apartments/Duplex
Our Services
What we do
About
Contact
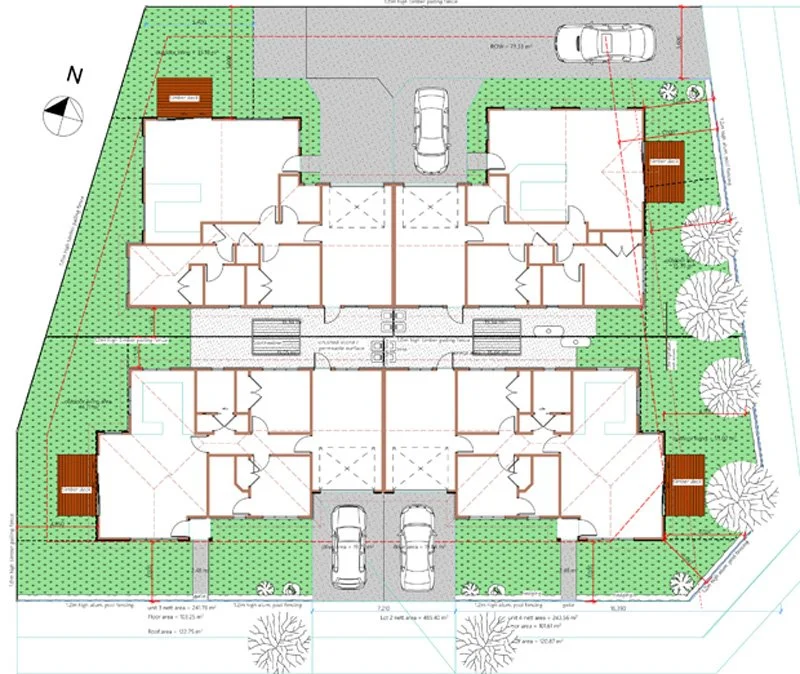
Apartments/Duplexes